+38 more
/ 43
+33
$175,000
2 bd
3 ba
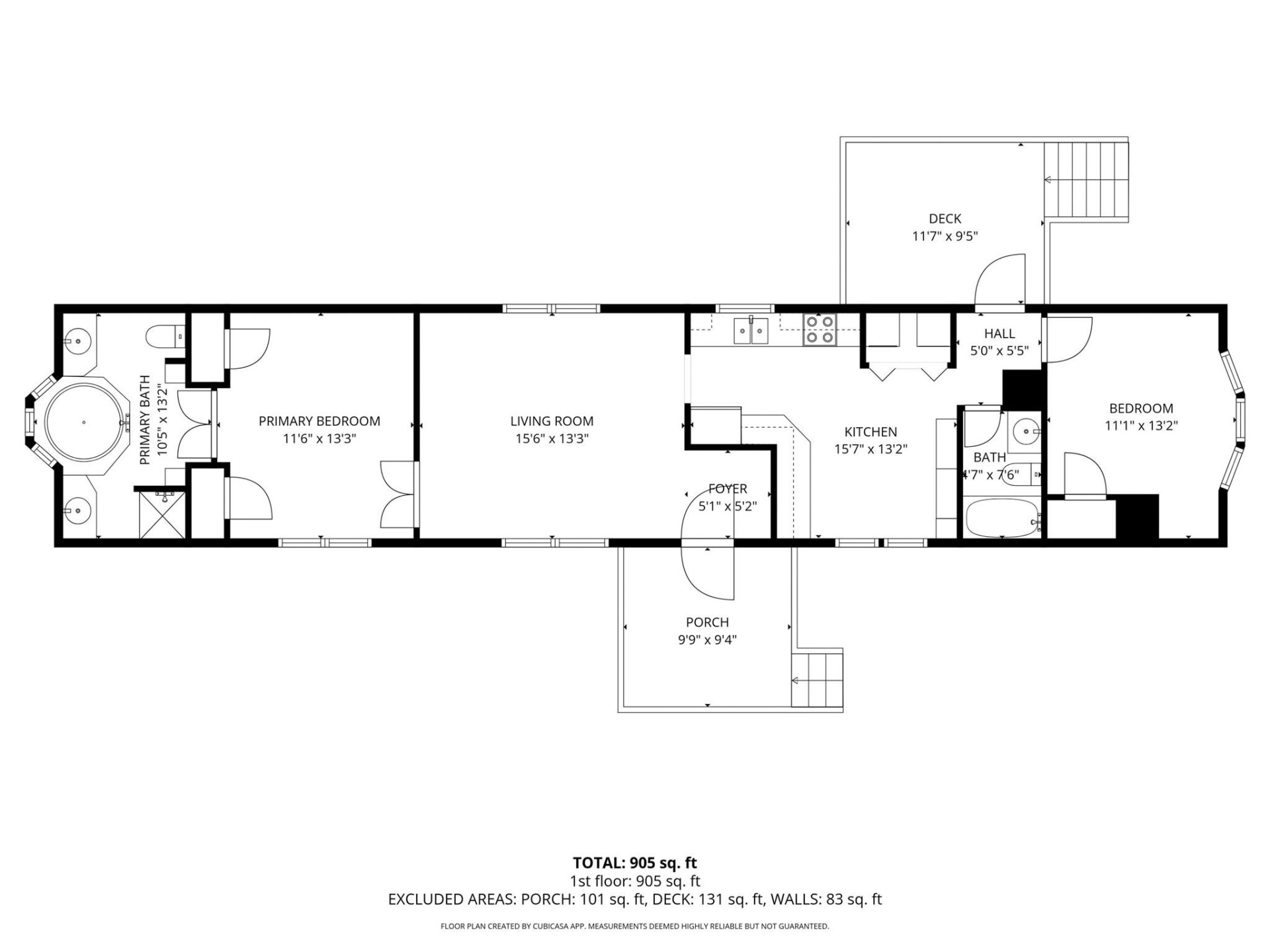
905 sqft
1112 Poors Ford Road
Rutherfordton, NC 28139
Active
Property Type
Residential
Year Built
1995
Lot Size
—
Garage
—
About This Property
Charming Manufactured Home on Beautiful, Level 2.91 acres of Land Located in Rutherfordton, a historic small town known for its charm & scenic foothill setting. This well maintained home offers comfortable living with a functional layout & classic finishes throughout. Situated on an exceptional, level lot this property provides plenty of space along with a sense of off road privacy, just minutes to Forest City, love the small town charm & a reasonable drive to Charlotte, offering perfect balance between peaceful living and city conveniences. Whether your a first time
homebuyer or looking to downsize. This property is a wonderful opportunity ideally being near the mountains while maintaining accessibility to nearby towns and larger cities.
homebuyer or looking to downsize. This property is a wonderful opportunity ideally being near the mountains while maintaining accessibility to nearby towns and larger cities.
Property Details
Interior
- Bedrooms
- 2
- Bathrooms
- 3
- Living Area
- 905 sqft
Exterior & Lot
- Year Built
- 1995
Location
- Subdivision
- None
- County
- Rutherford
- ZIP Code
- 28139
Financial
- Listing Terms
- Cash
Utilities
- Sewer
- Septic Installed
Schools
- Elementary
- Unspecified
- Middle School
- Unspecified
- High School
- Unspecified
Appliances
Electric Oven, Electric Range, Washer/Dryer
Lot Features
Cleared, Green Area, Open Lot
Location
Listing Information
- MLS #
- CAR4369633
- Listing Agent
- Tonya McMahan
- Listing Office
- Howard Hanna Beverly-Hanks Burnville
- Listed Date
- Apr 16, 2026
Contact Kim Schafer About This Property
Interested in 1112 Poors Ford Road? Send us a message and we'll get back to you.